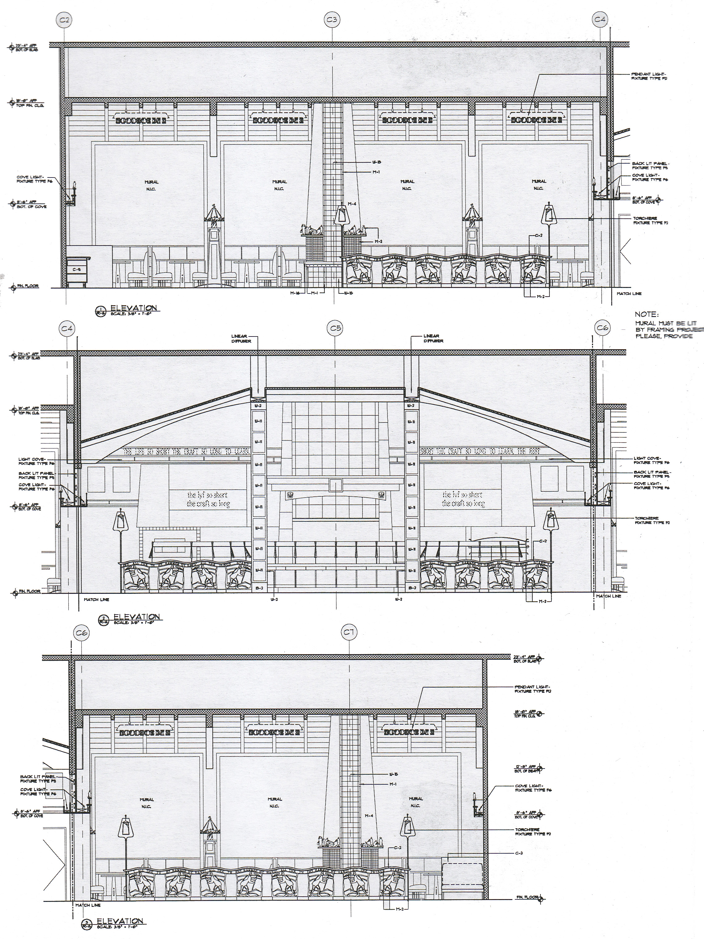
Storytellers Café at the Grand Californian Hotel (Disneyland Park, Anaheim) is a family restaurant with capacity for 325 seats. It allows for different types of seating from booths and large round tables to small tables for two. In a usual Disney theme park approach, it is focused on the theme of America’s Storytelling with images by N.C. Wyeth of 19th century pioneers discovering the West and Native American legends. The interior décor is inspired by the Arts-and-Crafts style, visually rich and layered with a wide range of materials. The client’s wish was to create a large scale grand dining room that at the same time carries a lot of smaller intricate detail, with always something new to discover and look at.
Location: Anaheim, California
Status: Completed
This project was designed by Marina Himanen while at Dorf Associates Architects.











