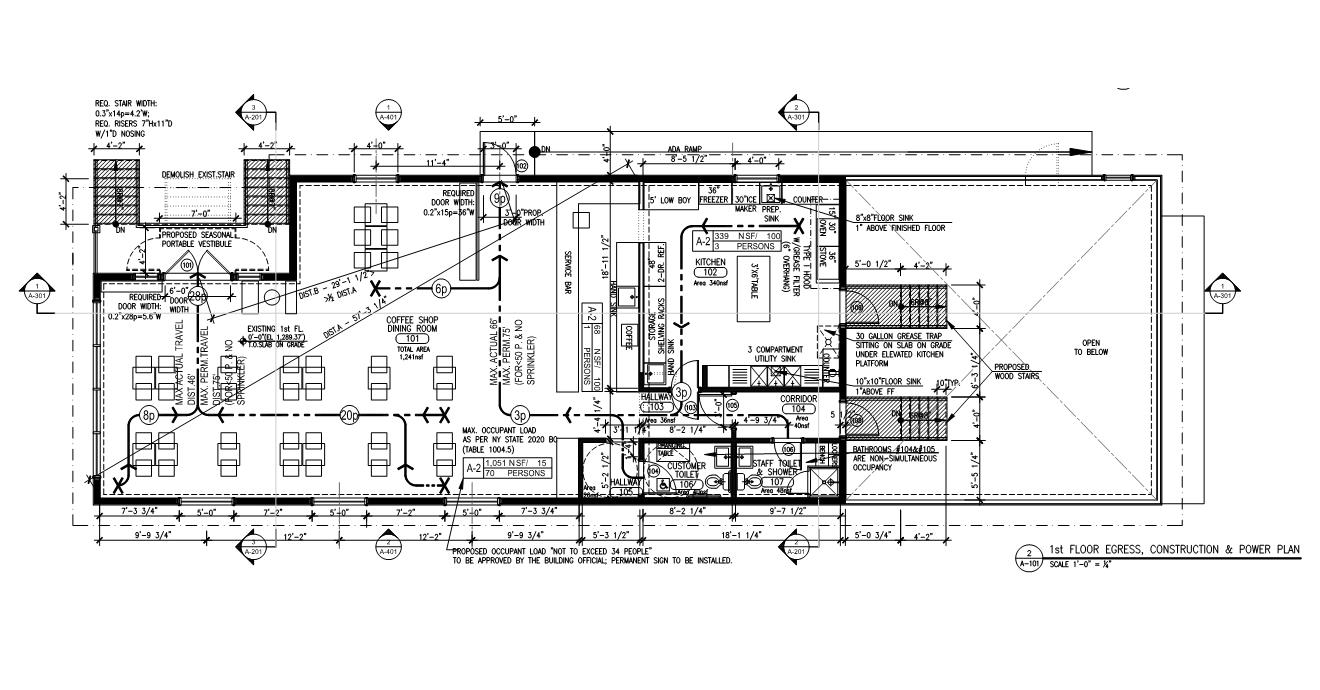
A 1,000 SF auto body shop located on the edge of downtown Roscoe on the bank of Willowemoc Creek was converted into a coffee shop by a family of Culinary Institute-trained bakers and contractors. Full gut renovation included flood mitigation measures, ADA accessibility features, HVAC, plumbing, kitchen, open seating for 30, and finishes. A tasteful addition to the community is expanding the attraction of Roscoe to travelers.
Location: Roscoe, NY
Status: Completed 2023











