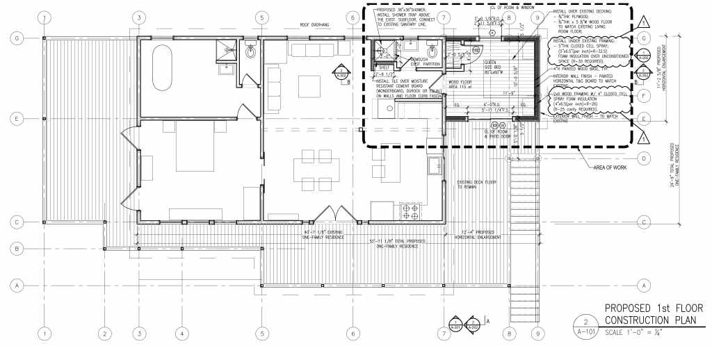
A bedroom & bathroom extension on a single-family house.
Location: Parksville, NY
Status: Under construction




A family-owned architecture firm in New York.
A bedroom & bathroom extension on a single-family house.
Location: Parksville, NY
Status: Under construction



